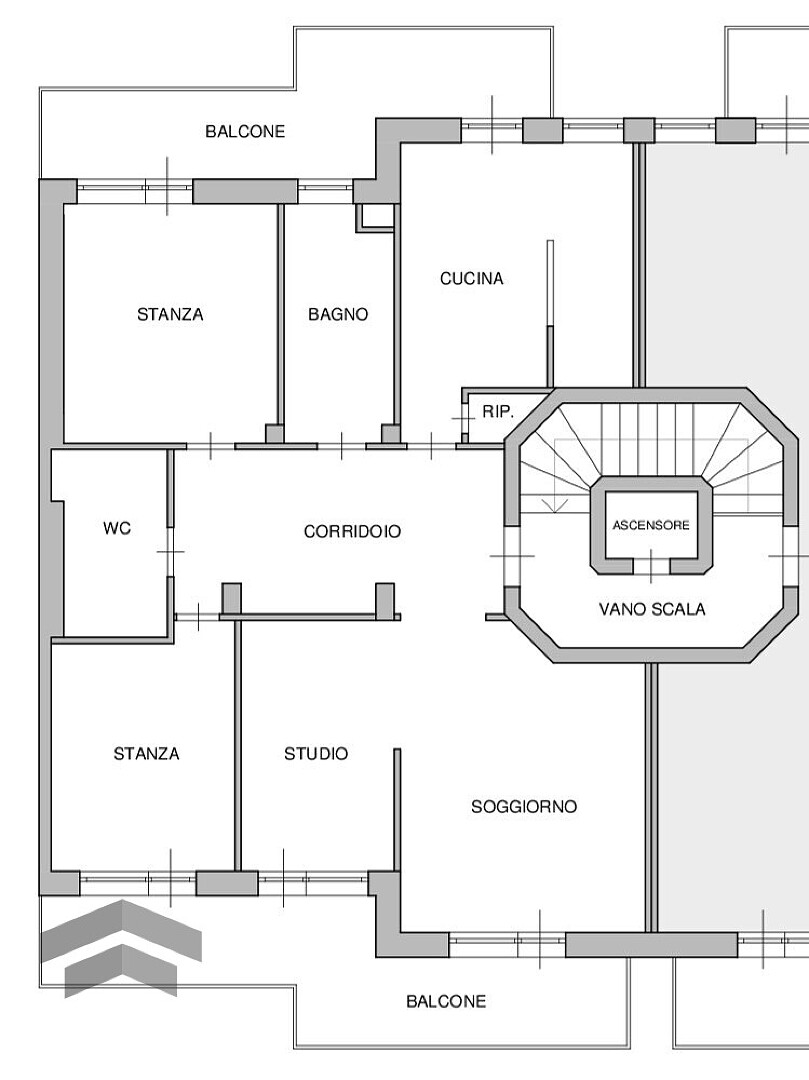
Questo spazioso e molto curato appartamento di tre/quattro locali a Maia Bassa, in piazza San Vigilio, all'ultimo piano, con soleggiata vista panoramica a 360 gradi, è una vera occasione da non perdere.
La vicinanza immediata a un grande centro commerciale, l'ottimo collegamento con il centro città e la generosa distribuzione degli spazi rendono questo appartamento un rifugio per giovani e meno giovani.
Per quanto riguarda la manutenzione, nel 2003 è stato ristrutturato il tetto, nel 2007 l'impianto di riscaldamento è stato convertito al teleriscaldamento e nel 2018 è stato rinnovato il bagno con le relative tubature dell'acqua. Inoltre, l'impianto di climatizzazione garantisce un piacevole comfort abitativo nelle giornate calde.
Naturalmente l'appartamento è comodamente raggiungibile con un ascensore e una cantina annessa offre ulteriore spazio di stoccaggio. Se necessario, sono disponibili separatamente (Euro 28.000/50.000) un o due garage in vendita.
Maggiori informazioni direttamente in agenzia.