DE
zurück zur Übersicht

Das Haus am Waldrand

Alle Bilder
3
2
170 m²
Preis auf Anfrage
Schnals, Südtirol

Charmantes Holzhaus aus den 50ern am Waldrand als ein Stück authentisches Schnalstal.

Nur einen Steinwurf vom geschichtsträchtigen etwa 200 Seelen Klosterdorf Karthaus - einst die Kartause  Allerengelberg, ein 1326 gestiftetes Kloster des Kartäuserordens - im bekannten Schnalstal (Fundort von Ötzi) bieten wir diese einmalige  Immobilie an.

Hier findest du die seltene Kombination aus absoluter Ruhe, den Duft des Waldes und die unmittelbare Nähe zum kulturellen Herz des Tales. 

Dieses in den 50er Jahren errichtete Holzhaus ist ein echtes Original. Es verkörpert die Schlichtheit und Gemütlichkeit einer vergangenen Ära. Obwohl das Haus in die Jahre gekommen ist, bietet es eine solide Basis für Individualisten.  

Lass dich von der Aura dieses Gebäudes inspirieren !

Für weitere Informationen stehen wir gerne zur Verfügung. 

Info
Handelsfläche
170,00 m²
Nettofläche
113,00 m²
Stockwerk
Mehrere Stockwerke
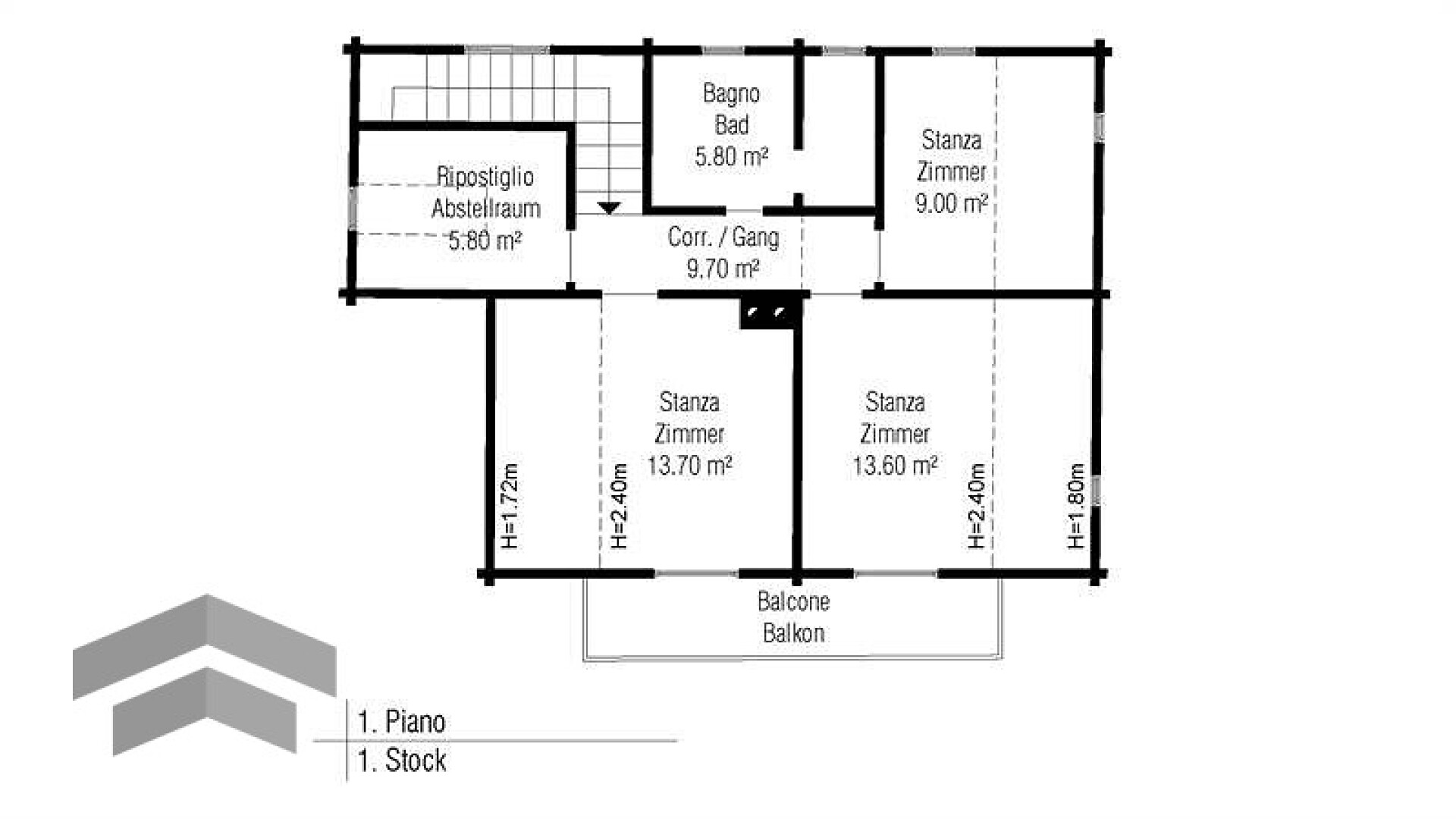
Badezimmer
2
Schlafzimmer
3
Baujahr
1956
Zustand
Bewohnbar
Heizungskontrolle
Autonom
Garage
Ja
Parkplätze
Ja
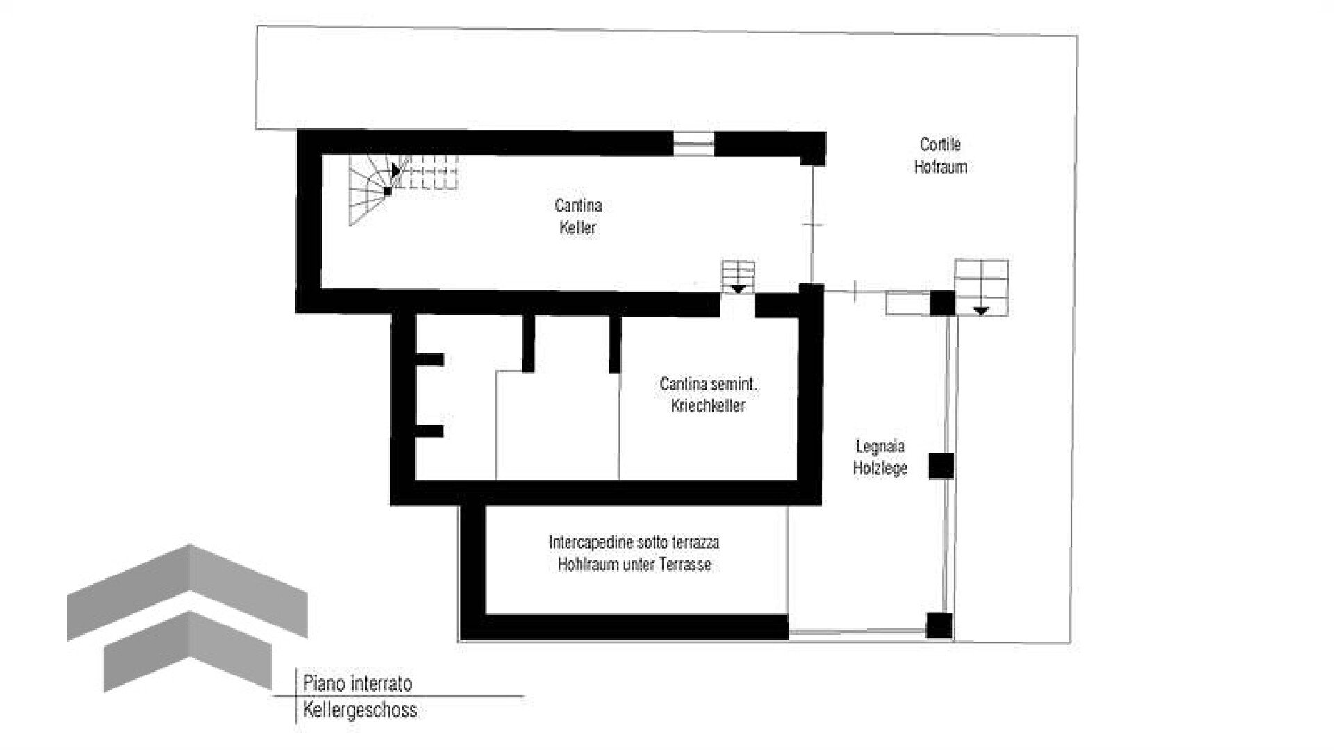
Keller
Ja
Balkon
Ja
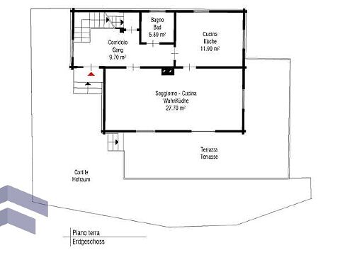
Terasse
Ja
Garten
Ja
Energiezertifizierung
G
Referenznummer
F2601
Pläne Anzeigen
Karte lädt...
zurück zur Übersicht
zurück zur Übersicht